Prostorný byt 2+1 s předzahrádkou v projektu U Pekáren

Praha 15, Hostivař

Cena
8 974 000 Kč
Dispozice bytu
2 + 1
Užitná plocha
91 m²

Popis nemovitosti

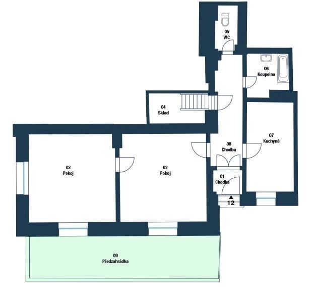
Nabízíme k prodeji prostorný byt o dispozici 2+1 s celkovou podlahovou plochou 90,9 m², který se nachází v 1. podlaží nově zrekonstruovaného domu v projektu U Pekáren. Díky jižní orientaci je byt krásně prosvětlený po celý den. K bytu náleží vlastní předzahrádka o velikosti 22,9 m², ideální pro soukromé posezení, pěstování bylinek či květin. Součástí nabídky je také vyhrazené parkovací stání a možnost využívat rozlehlou společnou zahradu ve vnitrobloku, která poskytuje příjemný prostor pro odpočinek i komunitní život. Byt je v původním stavu a před rekonstrukcí – novému majiteli tak nabízí možnost vytvořit si domov přesně podle vlastních představ. V bytě je příprava na kuchyň, původní koupelna, repasované interiérové dveře, plastová okna a zachovalé původní podlahy. Dům U Pekáren prošel kompletní revitalizací – byly obnoveny hlavní rozvody, fasáda i vstupní prostory, nově je zde instalován výtah a upravený vnitroblok s komunitní zahradou podtrhuje pohodovou atmosféru celého projektu. Lokalita nabízí vynikající dopravní dostupnost do centra Prahy. Vlaková stanice Praha-Hostivař se nachází přímo u domu a vlaky ve špičce jezdí každých 10 minut – cesta do centra trvá zhruba 13 minut. Tramvajová zastávka Nádraží Hostivař je vzdálena pouhých 5 minut chůze. Parkování v okolí není omezeno modrými zónami. V docházkové vzdálenosti najdete mateřskou i základní školu, supermarket Lidl (15 minut pěšky / 4 minuty autem) a další služby. Okolí zároveň nabízí široké možnosti rekreace a sportu – Hostivařský lesopark a přehrada jsou dostupné pěšky, stejně jako plavecký bazén či sportovní zázemí Univerzity Karlovy. V blízkosti působí také sportovní kluby TJ Sokol Hostivař, SK Horní Měcholupy nebo HBC Hostivař. Byt v projektu U Pekáren představuje dostupné a perspektivní bydlení s možností dalšího zhodnocení – ideální jak pro vlastní užívání, tak jako investice k pronájmu. Díky velikosti, dispozici a lokalitě nabízí tento byt mimořádnou flexibilitu pro budoucí využití.

Parametry

Typ nemovitosti: Byty
Dispozice bytu: 2 + 1
Vlastnictví: Osobní
Energetická náročnost budovy: D - Méně úsporná
Užitná plocha: 91 m²
číslo podlaží v domě: 1
Terasa plocha m2: 23 m²
Rok kolaudace: 1945
Datum nastěhování: 12. 11. 2025
Stáhnout nabídku v PDF Stáhnout nabídku v PDF

Klienti o nás říkají

Aneta má skvělý cit pro lidi i nemovitosti. Hledala jsem ideální investiční příležitost, a díky jejím doporučením jsem nejen našla perfektní byt, ale také výhodně investovala. Moc děkuji za vaši pomoc a odborné vedení.

Lucie H.

Spolupráce s Anetou byla od začátku až do konce naprosto skvělá. Oceňuji její osobní přístup a schopnost vysvětlit mi každý krok procesu prodeje. Díky její profesionalitě a pečlivosti se náš byt prodal rychle a za skvělou cenu. Rozhodně doporučuji!

Petra S.

Měla jsem obavy z pronájmu svého bytu, ale díky MojeMakléřka bylo vše hladké a bez stresu. Od přípravy bytu, přes profesionální inzerci až po podpis smlouvy jsem se cítila naprosto v bezpečí. Byla to nejlepší volba, jakou jsem mohla udělat.

Jana B.

Neváhejte nás kontaktovat. Jsme připraveni proměnit vaše realitní sny ve skutečnost.

Věříme, že správná komunikace a osobní přístup jsou základem úspěšné spolupráce. Jsme zde, abychom vám pomohli s každým krokem – ať už potřebujete poradit, zjistit více informací o našich službách, nebo se chcete pustit do konkrétního projektu. S námi získáte nejen odbornou podporu, ale i partnera, který naslouchá a skutečně vám rozumí.

Napište nám